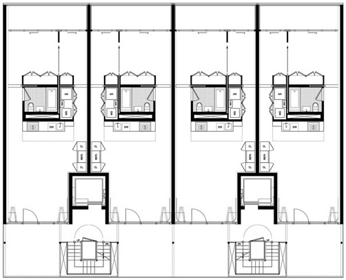
957 Pacific Street, Brooklyn, NYC

Ein eingestellter Küchen- und Badezimmerblock definiert den Wohn- und Schlafbereich.

1    2    3    4    5   

Harry KnollHome_D.html
ArchitekturArchitecture_D.html
KontaktCONTACT_D.html
BioBio_1_D.html

in Zusammenarbeit mit www.loadingdock5.com

HolzbauCarpentry_D.html