Harry KnollHome.html
ArchitectureArchitecture.html
CarpentryCarpentry.html
BioBio_1.html
ContactCONTACT.html

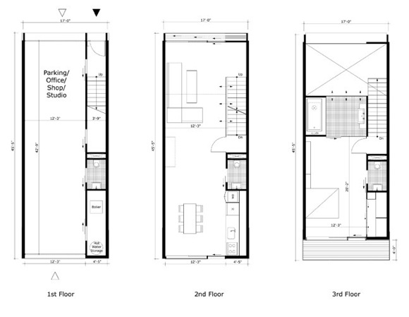
Townhouse California

Loft living in a townhouse

1    2    3    4